Содержание:
Рассказываем, как оформить и зонировать маленькую студию. Показываем готовые планировки и реализованные проекты.

Кажется, что жилье площадью пару десятков квадратных метров просто не может быть комфортным. Но опыт хозяев и дизайнеров доказывает: это не так. Такую микроквартиру можно сдавать в аренду, а можно жить там самостоятельно при грамотной организации пространства даже такой крошечный метраж может быть функциональным и удобным. В статье рассказываем, каким должен быть дизайн студии 20 м, показываем варианты планировок и рассматриваем примеры проектов для разных жизненных сценариев.
Все о дизайне студии 20 кв. м
На что обратить внимание

Первое, с чего начинают оформление любого пространства, определение его функционала. Обычно в студии проживает один человек, пара или молодая семья с маленьким ребенком. Для каждой категории будут разные задачи.















Особенности дизайна квартиры 20 кв. м
При оформлении маленьких пространств нужно решить сразу две задачи: найти место для всего необходимого и при этом сделать так, чтобы комната не выглядела загроможденной.
Оформление
Есть несколько приемов, которые помогают сделать пространство визуально более просторным и легким.




















Зонирование
Зонирование очень важно в оформлении маленькой квартиры, даже если в ней всего одна комната.

За редкими исключениями в дизайне студии 20 м кухня оказывается в том же помещении, что и спальня. Поэтому нужно продумать расположение зон так, чтобы одна не мешала другой.
Чаще всего комната делится последовательно: при входе в жилое пространство сначала идет зона готовки, за ней обеденная, в самой дальней части, у окна гостиная-спальня. В этом случае достаточно просто разместить группы мебель друг за другом на достаточном расстоянии. Если нужна приватность повесить шторку либо отделить какую-то зону раздвижной перегородкой. Для более легкого зонирования подойдут декоративные рейки, разная отделка стен и пола, цвета.
Высокие потолки позволяют организовать вертикальное зонирование, выделив второй ярус. Там почти всегда располагают спальное место, поскольку именно этой зоне требуется приватность. Тогда внизу можно оставить единое пространство кухни и гостиной. Иногда там же выделяют уголок для работы.











Варианты планировки
Есть несколько типичных планировок двадцатиметровых студий.
Прямоугольная без балкона
В прямоугольных студиях под жилую комнату обычно отводится 15-16 квадратов. Перед ней при входе располагаются небольшая прихожая и санузел.

Прямоугольная с балконом
Если к малогабаритной квартире прилагается застекленный балкон это большая удача.

Квадратная
Квадратная планировка это всегда вызов. Она, с одной стороны, дает больше возможностей для зонирования, с другой придется проявить фантазию, а не расположить зоны просто друг за другом.

Сложной формы
Наконец, самая сложная ситуация нестандартная и зачастую не самая удобная архитектура. Это могут быть скошенные углы, трапециевидная форма квартиры, углы, выступы и т.п.

Примеры проектов
А теперь рассмотрим конкретные примеры обустройства квартиры 20 кв. м для разных жизненных сценариев.
В краткосрочную аренду
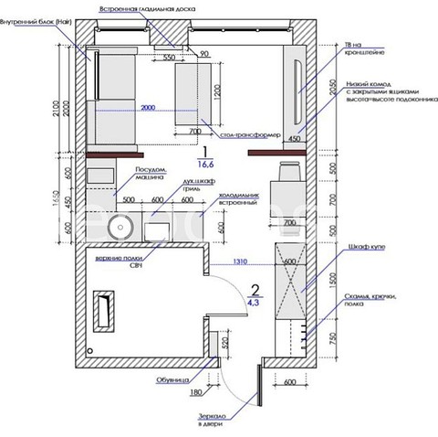
Чаще всего микростудии берут для сдачи в кратковременную аренду: например, туристам. Вот один из таких примеров. Эта квартира площадью 20,8 квадратов находится в Санкт-Петербурге, и владелица апартаментов хотела оформить их так, чтобы здесь чувствовался дух города. По изначальному плану здесь была комната 12,5 кв. м, ванная 3,1 кв. м и прихожая 5,2 кв. м. Никаких изменений вносить не стали зоны распределены традиционно, да и на такой маленькой площади нет особых вариантов для перепланировки.
Застройщик сдавал объект с частичной отделкой, и ее не стали менять. Для стен выбрали светлую краску, чтобы визуально расширить пространство, в кухонной зоне добавили бежевого цвета. Поскольку Санкт-Петербург у многих ассоциируется с водой, нейтральную палитру разбавили мебелью и текстилем глубокого синего оттенка. В итоге получился одновременно спокойный и динамичный интерьер. Поскольку жилье не для постоянного проживания, многофункциональность здесь не требовалась. Для спального места выбрали удобную широкую кровать. Для обеденной зоны круглый столик на две персоны. Гарнитур выбрали компактный много готовить гости не будут, зато хватило места для тостера и кофемашины.








В долгосрочную аренду
Небольшие студии подходят и для обычной аренды это удобное и недорогое жилье для студентов или молодых пар. Площадь этой квартиры чуть больше 20 квадратов, по форме классический длинный «вагон». Перепланировку не делали. Также здесь уже была отделка от застройщика, и поскольку бюджет заказчиков был ограничен, дизайнер оставила максимум уже имеющегося оформления. Сняли только обоев вместо них стены выкрасили в три цвета (нейтральный и два акцентных), использовав прием колор-блокинга.
Мебель и аксессуары подбирали из масс-маркета, требовалось как можно больше бюджетных решений. При входе в жилую часть справа расположили зону готовки, а слева поставили большой шкаф основную систему хранения. Там же встал холодильник, и на ним сделали две полки, чтобы полностью задействовать вертикаль стены. Гарнитур угловой, с комбинированным верхним ярусом (шкафы и открытые полки). Вместо традиционного обеденного стола барная стойка. У окна расположили зону отдыха с раскладывающимся диваном и телевизором с комодом напротив. Для стиральной машинки нашли место в ванной, поставив ее под раковину вместо привычной тумбочки. В итоге в квартире есть все необходимое для комфортного долгосрочного проживания: бытовая техника, спальное место и мини-гостиная, достаточно мест для хранения вещей.









Для одного человека
Студия 20 кв. м (или даже чуть меньше 19,2 квадрата, как в этом проекте) подходит и для личного проживания. Например, здесь крошечное пространство оформили для студентки. Казалось бы, Г-образное пространство площадью чуть больше 13 кв. м не дает никакого пространства для творчества, но это не так. Дизайнер применила сразу несколько интересных приемов:









Для семейной пары
Эта квартира находится в Париже, но пример будет актуален для любого жилья с высоким потолком. Здесь его задействовали с максимальной пользой, выделив антресольный ярус и разместив там спальное место. Это удобно и потому, что освобождается место внизу, и с точки зрения зонирования все-таки психологически комфортнее спать в уединении, а под потолком получается «гнездышко». К тому же, если вы живете вдвоем, один человек не будет мешать другому так, как это было бы, если бы кровать находилась рядом с кухней или рабочим местом.
Дизайн сделали простым, но очень уютным. Получилось сочетание скандинавского и экостиля: светлая палитра, акценты в виде растений и не слишком ярких природных оттенков, много деревянных поверхностей. Всю крупную мебель сделали белой, точно в тон стен и потолка в итоге она практически растворяется в них, не создавая ощущения тесноты в комнате.









Комментарии закрыты.