Содержание:
Дизайнер Алексей Леонов создал комфортное пространство в темных тонах для себя и своих детей.

Эта квартира в одном из московских ЖК принадлежит дизайнеру Алексею Леонову. Алексей по профессии звукорежиссер, а дизайном стал заниматься относительно недавно. Квартиру он делал для себя и двух дочек: старшей девятнадцатилетней Эми, младшей пятилетней Майи. Девочки не живут постоянно с папой. Старшая переехала за границу. Младшая живет поочередно или с мамой, или с папой.

Тем не менее в квартире нужна была отдельная спальня, где могли бы остановиться дочки. Также среди задач, которые Алексей ставил перед собой обустройство постирочной, большое количество систем хранения, общая кухня-гостиная, где можно проводить время вместе, санузел с душевой.

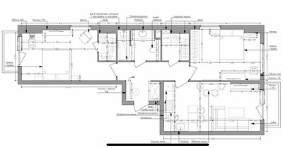
Планировка
Застройщик сдавал квартиру с кухней-гостиной, двумя спальнями и двумя санузлами. Алексей превратил один из санузлов в постирочную и в своей спальне выделил гардеробную. Остальные зоны остались на своих местах.

Отделка
Для отделки стен и потолком дизайнер выбрал краску. В основном, это насыщенные темные оттенки. Прихожая и мастер-спальня в темных тонах.

В спальне в черный выкрашен даже потолок. В кухне-гостиной графитовый совмещен с приглушенным зеленым цветом стен. В детской более насыщенный зеленый оттенок. Стены украшают молдинги, а потолки высокие карнизы и лепные розетки.

В постирочной и гардеробной Алексей решил использовать обои. Это помещения, которые немного отличаются по стилистике от парадных прихожей и спальни и более универсальных кухни-гостиной и детской. Можно сказать, что дизайнер позволил себе «похулиганить», выбрав для них обои с тропическим принтом яркими растениями и птицами. Тем не менее зеленый присутствует и здесь.

В санузле морская тематика. Стены и пол выложены плиткой: скомбинированы синий и белый цвета, а также разные фактуры гладкие и рельефные, рисунок мрамора.

Для пола прихожей дизайнер выбрал керамогранит под черный мрамор с белыми прожилками, он же на фартуке кухни и на полу кухни-гостиной. В мастер-спальне инженерная доска. Алексей хотел и зону гостиной оформить инженерной доской, но во время строительных работ в этой комнате пришлось долго ждать просыхания стен. Из-за высокой влажности пришлось остановиться на менее капризном материале плитке. В детской использовали кварцвинил.
Мебель и системы хранения
В своей спальне Алексей выделил гардеробную. Это отдельное маленькое помещение с дверью. Кроме собственно кровати и тумбочек, дизайнер также оборудовал рабочее место стол-стеллаж. Компактно, но удобно.

В комнате дочерей встроенный шкаф для одежды, комоды для вещей и игрушек, есть консольный столик, который можно использовать как рабочий для старшей дочки или для младшей, когда она пойдет в школу. Также здесь разместилась зона игр (стульчик и стол, сухой бассейн).

В кухне-гостиной зонирование условное с помощью части П-образной кухни. Верхние шкафы, при этом, занимают только одну стену вместе со шкафами-колоннами, куда встроена техника.

Также в гостиной нашли место для цифрового пианино. ТВ-зона компактная, напротив дивана. Обеденный стол приставлен к зеркальной стене. Зеркало визуально расширяет пространство и добавляет ему парадности.

В прихожей дизайнер предусмотрел шкаф для верхней одежды, а также консоли для мелочей. В постирочной организовано хозяйственное хранение.
Освещение
Сценарии света разнообразны. Это и потолочные точечные светильники, и люстры, и скрытые подсветки, а также дополнительный свет в виде торшеров, настольных ламп, подвесов. Свет здесь задает настроение, а светильники выступают такими же декоративными элементами, как и искусство и постеры на стенах.

Гостиная-кухня

Гостиная-кухня

Гостиная

Мастер-спальня

Мастер-спальня

Мастер-спальня

Детская спальня

Детская спальня

Санузел

Санузел

Санузел

Прихожая

Прихожая Редакция предупреждает, что в соответствии с Жилищным кодексом РФ требуется согласование проводимых переустройств и перепланировок.

Комментарии закрыты.