Содержание:
Рассказываем, как оформить двушку в хрущевке для разных составов семьи, с перепланировкой и без. Показываем примеры работы с пространством.

Вторичное жилье для многих привлекательно сравнительно невысокой ценой. Да, условия в квартире обычно соответствующие, но ее можно преобразить, сделать более удобной и современной. Хрущевки с 2 комнатами подходят как для одного человека, так и для пар или семей с детьми вариантов, как распределить пространство, больше, чем в тридцатиметровой однушке. В статье расскажем, каким должен быть дизайн такой двушки, покажем реальные примеры и варианты перепланировок.
Все о дизайне хрущевки с 2 комнатами
Особенности жилья

К хрущевкам относят все серии типовых домов, которые возводились при Хрущеве. Тогда основной целью было построить как можно больше жилых зданий, и сделать это нужно было быстро и недорого. Отсюда и соответствующие особенности, которые хорошо видны на фото хрущевок с 2 комнатами, одной или тремя.
Вот что характерно для такого жилья:




Со всем этим предстоит работать в процессе ремонта и планировки хрущевки с 2 комнатами. Причем изменение исходных данных может оказаться проблематичным. Например, чтобы сделать кухню-гостиную, придется отказаться от газа в квартире или обязательно ставить раздвижную перегородку. А несущие стены вообще исключают возможность как-то менять конфигурацию комнат.
















Ремонт хрущевки с 2 комнатами без перепланировки
Первый и самый главный вопрос для владельцев такой квартиры: делать ли глобальную перепланировку хрущевки с 2 комнатами или нет?

Изначальные условия устраивают не всех, но многие стараются избежать сложного процесса и стараются улучшить пространство в рамках того, что уже есть. Зачастую это удается: в интернете есть много фото 2-комнатных хрущевок без перепланировки, которые удобны для современной жизни.

















Варианты перепланировки 2-х комнатной хрущевки
В некоторых случаях новое планировочное решение просто необходимо. Вот несколько примеров, что можно сделать.
Для одного жильца
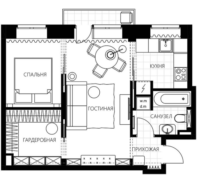
Эту квартиру площадью 43 кв. м оформляли для девушки, и важно было возможность официально согласовать все преобразования. Поэтому их внесли по минимуму и строго в рамках закона.
Так, изменили:
В итоге мы видим пример удобной перепланировки 2-комнатной хрущевки с проходной комнатой.

До

После
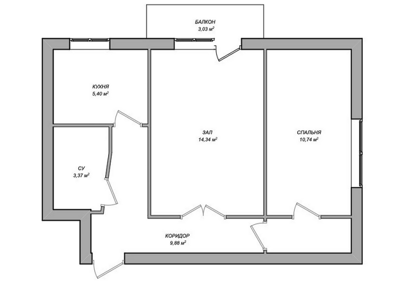
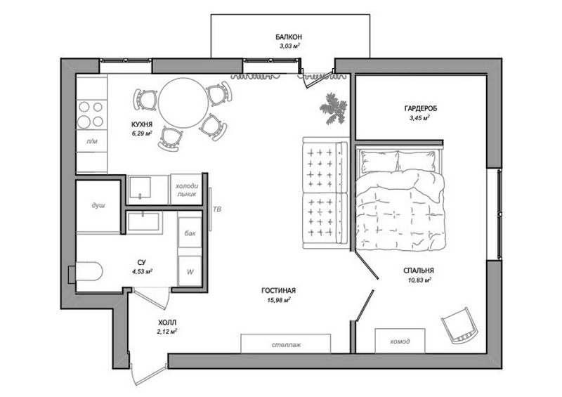
Для сдачи в аренду
Вторичку часто преображают для того, чтобы потом сдавать в аренду. Так, эта двушка в Геленджике предназначена для приема туристов и гостей города, поэтому пространство нужно было сделать максимально удобным и универсальным. В работу дизайнеру досталось жилье с уже измененным планировочным решением, которое все так же оставалось неудобным.
Для этого:

До

После
Для двоих
Хрущевская двушка будет удобна для пары: площади и функционала вполне достаточно. Можно обойтись даже без перепланировки, но при отсутствии несущих стен есть смысл сделать ее удобнее. Например, здесь отказались от газа и объединили кухню с гостиной. В итоге получилась классическая европланировка с просторной общей зоной и маленькой изолированной спальней. Кладовку увеличили и сделали небольшую, но вместительную гардеробную. А на месте бывшего коридора выделили мини-кабинет.

До

После
Для семьи с детьми
Если в семье есть ребенок или даже двое, то есть два пути: отказаться от гостиной, выделив одну комнату под спальню, другую под детскую, или оставить общее пространство, а во второй комнате оформить взрослую и детскую зоны. В этом примере сделали именно так, причем родительскую часть полностью обособили, передвинув перегородку кладовки. Таким образом дальнюю комнату разделили на две, получив мини-спальню и детскую.
Поскольку места будет мало, если детей двое, единственный вариант поставить двухъярусную кровать. А если один из малышей еще совсем маленький, можно поставить детскую кроватку рядом со спальным местом родителей. На фото ниже перепланировка хрущевки с 2 комнатами.

До

После
Оформление комнат
Наконец, рассмотрим работающие приемы для ремонта 2 комнат в хрущевке с фото реальных квартир.
Кухня

Кухня главная боль всех владельцев вторички того периода. На 4-6 квадратах действительно сложно разместить все необходимое, особенно если обе комнаты отданы под спальни и нет возможности вынести столовую зону в гостиную.
Что делать на такой маленькой кухне?
Что касается дизайна, то здесь работают универсальные правила. Самый простой и безопасный вариант однотонные поверхности и светлые нейтральные цвета. Можно и поэкспериментировать, но если вы используете яркую или темную палитру, позаботьтесь о хорошем освещении.











Жилые комнаты
Жилые зоны оформляются в соответствии с общим стилем, который вы выбрали для квартиры.

Их назначение зависит от состава семьи. Для одного человека или пары без детей подойдет вариант с гостиной и отдельной спальне. При наличии двух поколений придется либо отказаться от гостиной, либо зонировать вторую комнату. Последний вариант больше актуален для маленьких детей, а вот подросткам очень нужно свое пространство. В 2-комнатной хрущевке проходную комнату лучше отдать под гостиную, поскольку отдыхать там, где все время кто-то ходит, будет не слишком удобно.












Если в одном помещении планируется несколько функциональных зон, продумайте эргономичное расположение мебели: диваны, кресла, столы, кровати должны стоять так, чтобы между ними был свободный проход. А чтобы пространство не казалось тесным, лучше выбрать светлую спокойную отделку и лаконичную мебель, возможно, даже ей в тон. Какие-то предметы можно сделать акцентными, чтобы добавить в нейтральный интерьер изюминку. То же самое помогут сделать детали: декор и текстиль.







Санузел
Обычно санузел в хрущевских двушках совмещенный, и чаще всего это удобный вариант, поскольку так можно вместить больше мебели и техники. Особенно если немного расширить площадь ванной за счет коридора.

Если вам подходит душевая кабина, то вы без проблем разместите в санузле ее, унитаз, раковину и стиральную машину. А вот тем, кому принципиально важна ванна, придется подумать, как найти место для всей необходимой техники. Например, можно поставить машинку на кухне или выбрать компактную настенную модель для 1-2 человек уменьшенного барабана точно хватит.














Прихожая
Прихожая в хрущевке занимает буквально пару квадратов, поэтому здесь нужно в первую очередь позаботиться об эргономике и хранении.

Хороший вариант неглубокий шкаф под потолок. Если есть возможность хранить основной массив вещей в спальне, гостиной или отдельной гардеробной, можно ограничиться обувницей и вешалкой для верхней одежды. Самое главное продумать логистику так, чтобы не нести грязь в дом. Для этого пригодятся придверный коврик, подставка под зонтики и мокрую обувь.
Для отделки выбирайте практичные материалы, которые не боятся химии и легко моются. Для пола это плитка, керамогранит и кварцвинил, для стен влагостойкая краска, антивандальные обои или штукатурка. Палитру лучше сделать простой: на базе белого, бежевого или серого.









Комментарии закрыты.