Содержание:
Две гардеробные комнаты, кладовая, отдельные спальни для родителей и сына, просторная кухня-гостиная, два санузла в этой квартире уместили все. Интерьер же оформили светлый, базовый, который не надоест и не выйдет из моды.

Заказчики и задачи
Владельцы этой квартиры в Зеленограде семья с сыном дошкольного возраста обратилась к дизайнеру Ольге Кожаевой с конкретными пожеланиями по функциональности: количеству комнат, гардеробных и санузлов. Однако по эстетике у них не было четкого запроса. Хотелось сделать светло, уютно, не ультрасовременно, но и не уходить в тяжелую классику. Ольга смогла прочувствовать потребности хозяев, которые не получилось озвучить конкретно, и в итоге получился интерьер вне времени, тяготеющий к стилистике американской классики.

Перепланировка
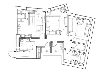
В плане БТИ были обозначены два санузла, кухня, лоджия и пустое пространство. По факту же квартира была без перегородок и без выделенной лоджии.
«Квартира находится в доме, который построен полукругом, она представляет форму сектора, то есть в ней практически не было углов под 90 градусов. Мне же хотелось привести ее к порядку, по возможности выпрямить комнаты, сделать хотя бы три угла под 90 градусов», делится сложностями дизайнер.
Ольга выделила просторную кухню-гостиную, две отдельные комнаты, две гардеробные, кладовую, которые расположены в общем холле, два санузла (один полноценный, с ванной, второй гостевой, где также оборудована постирочная зона).

В перепланировке есть ряд моментов, которые планировали согласовать с помощью застройщика, получив новый план БТИ. Во-первых, кухню в итоге увеличили за счет прилегающей жилой комнаты. Во-вторых, часть кухни зашла на санузел. В-третьих, отсутствие лоджии. (Стандартно это является запрещенными действиями прим. редакции)
Отделка
Для отделки стен выбрали светлую краску, дополнив их молдингами в зоне гостиной и в спальне за изголовьем кровати.

На полу жилых зон и на кухне уложили дубовый паркет из крупных плашек. Выбрали классическую укладку «елочкой».

В прихожей светлый керамогранит под мрамор на полу. Его же выбрали для отделки ванной комнаты. На фартуке кухни тоже керамогранит. Материалы натуральные или, как в случае с керамогранитом, имитирующие природную фактуру. Они выступают прекрасным фоном, даже при замене крупной мебели и декора их можно оставить как базу.

Мебель и системы хранения
На этапе планировки выделили две гардеробные в коридоре (мужскую и женскую) и кладовую для хозяйственных вещей, поэтому шкафа в квартире всего два: в прихожей и в детской.

В детской шкаф не встроенный, сделали такой выбор с прицелом на возможные изменения в комнате по мере взросления ребенка.

Мебель же комбинация классики и современности. Так, например, фасады шкафов выполнены с филенками, что отсылает больше к классическому стилю, при этом мягкая мебель современных форм, как и обеденный стол со стульями. Корпусную мебель делали на заказ, а отдельно стоящую выбирали среди готовых позиций мебельных гипермаркетов (диван и кровать, мебель в детскую, где поменяли ручки).

Освещение
Сценарии света спроектированы традиционно: общий и дополнительный (декоративный). По стилистике светильники продолжают заданную концепцию. Здесь есть и более классические модели, как, например, люстра со «свечками» в спальне и бра по бокам от зеркала в ванной, так и современные встроенные и накладные точечные светильники, люстры над обеденным столом и в зоне гостиной, минималистичные подвесы в прихожей.

Ольга Кожаева Дизайнер, автор проекта
Так как заказчики не знали, в каком стиле хотят сделать интерьер квартиры, но дали вводные, я предложила американскую современную классику. Этот стиль более всего отражал их пожелания: светлый, теплый интерьер, не перегруженный деталями, не уходящий сильно в классику и с современными элементами. Классику я подчеркнула молдингами на стенах и карнизами на потолке, паркетом французской елочкой из натурального дуба, а также высоким белым плинтусом. Современность же я выразила в выборе светильников и мебели.

Гостиная

Кухня-гостиная

Столовая зона

Спальня

Спальня

Спальня

Спальня

Спальня

Спальня

Детская

Детская

Прихожая

Прихожая

Ванная комната Редакция предупреждает, что в соответствии с Жилищным кодексом РФ требуется согласование проводимых переустройств и перепланировок.

Комментарии закрыты.