Содержание:
Хозяева доверились дизайнерам, которые предложили использовать яркие цвета в отделке. И теперь наслаждаются новой обстановкой.

Заказчик и задачи
Активная молодая семья с ребенком и собакой приобрела эту квартиру с ремонтом, который остался от предыдущих владельцев. Они обратились в студию VizDiz с просьбой сделать новое удобное пространство для жизни. Хотели разделить большую ванную, утеплить балконы. Изначально видели свою квартиру светлой и нейтральной. Но в результате анализа характеров и образа жизни членов семьи автор проекта Илона Ореховская предложила использовать яркие цвета. Получилось очень гармоничное пространство, в котором точно не соскучишься!

Перепланировка
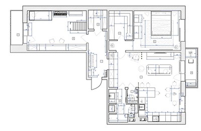
Квартира находится в кирпичном доме, построенном по индивидуальному проекту в конце 2000-х. На большой площади (почти 110 квадратных метров) располагались две изолированные комнаты, кухня-гостиная, большая ванная, кладовка и два балкона. В результате перепланировки на площади мокрой зоны обособили туалет, сохранив при этом простор и эргономику ванной комнаты. В одной из комнат (спальне хозяев) выделили гардеробную. В остальном же все осталось по-прежнему.

Отделка
Для отделки стен выбрали краску. Это было необходимо, чтобы воплотить идею яркого интерьера, ведь именно с краской доступна большая палитра цветов. Так, прихожая и коридор окрашены в глубокий зеленый цвет. Кухня горчично-желтая, очень теплая.

В гостиной светлые стены, но в ТВ-зоне нижнюю часть выделили бордовым цветом. Это пересечение с цветом нижних фасадов кухонного гарнитура.

В спальне сочетали светлый оттенок с коралловым и голубым. Применили принцип окрашивания колор-блок.

Детская нейтральная, уютная и немного сказочная. На стенах бежевая краска и обои с рисунком леса.

На полу в жилых комнатах уложили ламинат. В прихожей и на кухне плитка с рисунком, напоминающим метлах. Фартук оформили белым кабанчиком и листом латуни. Золотистая латунь эффектно смотрится на фоне желтых стен и сочетается с золотистыми аксессуарами.

В ванной комнате собраны, кажется, все цвета интерьера. В основе белая плитка с яркой оранжевой затиркой. Стены, куда не попадет вода, окрашены в оранжевый, желтый, бирюзовый по принципу колор-блокинга. На полу плитка под терраццо, где собраны все эти цвета.

В малом гостевом санузле более сдержанная и строгая гамма. Белая, серая и синяя плитка сочетаются с зеленой краской на стенах и керамогранитом под дерево на полу.

Кроме этого, стены украшают молдинги, создающие в интерьере динамику и ритм. Особый уют придает дерево это и реечные перегородки, отделяющие зону гостиной от проходной части, отделка окна на кухне (откосы, подоконник, экран батареи) шпоном, элементы мебели.

Мебель и системы хранения
Кладовая, выделенная гардеробная в спальне, встроенные шкафы в детской, шкаф и комод в прихожей, тумба в гостиной, комод в спальне хранение продумано разным образом и отвечает потребностям заказчиков.

Площадь позволила спроектировать большую кухню. Гарнитур П-образный, с барной стойкой, но верхние шкафы сделали только по одной стене. Встроена вся нужная техника, продуманы места для хранения и удобный рабочий треугольник. В ванной комнате, кроме тумбы под раковину, спроектировали встроенный хозяйственный шкаф, где спрятана стиральная машина. В детской предусмотрена не только зона сна, рабочая зона, но и спортивный уголок в виде шведской стенки.

Освещение
В натяжной потолок встроили точечные светильники. Для акцентного света предусмотрели люстры, подвесы, торшеры. Светильники разные: из металла, пластика, в ретростиле и современном. Дополнительные светильники служат не только по своему прямому назначению, но и украшают этот интерьер.

Илона Ореховская Дизайнер, руководитель студии VizDiz, автор проекта
Этот интерьер удивляет яркой и сложной цветовой гаммой, которая создает ощущение насыщенности и энергии. Каждая деталь внимательно подобрана и вписывается в общую композицию, не вызывая раздражения. Цветовой контраст и гармония сделали этот интерьер уникальным и привлекательным для глаз. Он наполняет пространство жизнью и радостью, безупречно отражая индивидуальность и стиль владельцев.

Гостиная

Гостиная

Гостиная

Кухня

Кухня

Спальня

Спальня

Спальня

Спальня

Детская

Детская

Коридор

Ванная комната

Ванная комната

Ванная комната

Туалет
Фрагменты квартиры до ремонта













Редакция предупреждает, что в соответствии с Жилищным кодексом РФ требуется согласование проводимых переустройств и перепланировок.

Комментарии закрыты.