Содержание:
Если вы любите винтаж и ретро, не обязательно искать квартиру в старом фонде. Нужную атмосферу можно создать и в новостройке. Этот проект яркое подтверждение.

Заказчик и задачи
Мужчина средних лет приобрел эту квартиру для последующей сдачи в аренду. Он хотел, чтобы интерьер отличался от сотен других на рынке и пригласил дизайнера Ольгу Хрипунову для оформления пространства. Ольга предложила стиль mid-century, середины прошлого века, а заказчик, чье детство прошло в СССР, с радостью поддержал эту идею.

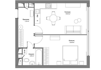
Планировка
Застройщик сдал эту квартиру с так называемой «трассировкой» намеченными перегородками. И по плану здесь были кухня-гостиная, спальня, санузел и большая прихожая. Дизайнер придерживалась этого плана.

Отделка
Для отделки стен выбрали краску как простой и ремонтопригодный материал, что важно для квартиры, которую будут сдавать в аренду. К тому же краску можно колеровать в любой оттенок, а в этом интерьере цвету уделили немало внимания. Так, кухня-гостиная и прихожая окрашены в сложный голубой оттенок. Спальня пыльно-розовая. В санузле белую настенную плитку, которая напоминает ту, что укладывали в советских квартирах, скомбинировали с оливковой краской.

Для пола выбрали инженерную доску и уложили ее «елочкой», имитируя паркет в квартирах сталинской эпохи. Хозяин не хотел экономить на напольном покрытии. В прихожей и ванной комнатой плитка, уложенная «ковром». Тоже отсылка к советской эпохе, где метлахскую плитку укладывали в общественных пространствах и иногда в квартирах.

Еще одно решение, которое позволило усилить атмосферу ретро высокие дверные проемы в кухне-гостиной и спальне. Над дверями сделали фрамуги со стеклом. Так в прихожую еще и попадает естественный свет даже при закрытой двери.

Мебель и системы хранения
Для хранения повседневных, сезонных вещей и инвентаря для уборки спроектировали два больших встроенных шкафа в прихожей и спальне. Для обуви выделили нишу в прихожей, скрытую жалюзийной дверкой.
Тумба под телевизор (чехословацкий хайборд), обеденные стулья и стол (модель Tulip 60-х), прикроватные тумбочки все это отреставрированный винтаж. Тумба в прихожей тоже винтажная, ее расписала художница, создав рисунок в стиле поп-арт характерный стиль середины прошлого века. При этом, конечно, мебель комбинировали с современной. Журнальные столики, к примеру, пример нового дизайна, но они отлично гармонируют с ретромебелью. А кровать в спальне тоже новая просто подобрана в нужной стилистике, напоминает железные кровати родом из СССР.

Кухня компактная. Дизайнер разместила верхние шкафы только по одной стене, оставив вторую свободной, там только открытая полка. И на кухне тот самый холодильник ЗИЛ. Теперь уже рабочий, как новый для того, чтобы дать ему вторую жизнь, нашли мастера.

Освещение
В работе с освещением дизайнер придерживалась общей концепции интерьера и комбинировала винтаж с современными светильниками. Люстры в гостиной и спальне, бра над диваном и зеркалом в ванной винтажные. В прихожей размещены бра от ИКЕА, на кухне монтирована скрытая подсветка, в гостиной стоит торшер.


Ольга Хрипунова Дизайнер, автор проекта
Стиль определили взгляды заказчика. Я лишь подсказала ему идею, помогла облечь ее в форму. В общей картине интерьера мне хотелось задействовать вещи с историей, передать с их помощью дух того времени. Поэтому здесь много винтажа (это и мебель, и освещение). Нам даже удалось найти энтузиаста, который отреставрировал холодильник ЗИЛ! А чтобы все это не превратилось в «бабушкин» вариант, мы разбавили ретро современными деталями. У нас получилось создать современный, технологичный, комфортный интерьер с милой сердцу заказчика идеей и историей.

Гостиная

Кухня

Кухня

Спальня

Спальня

Спальня

Санузел

Прихожая

Прихожая Редакция предупреждает, что в соответствии с Жилищным кодексом РФ требуется согласование проводимых переустройств и перепланировок.

Комментарии закрыты.