Содержание:
Апартаменты находятся в Сочи, в комплексе у моря. Этим и обусловлена выбранная стилистика пространства.

Заказчики и задачи
Семья купила эти апартаменты с инвестиционной целью сдавать в аренду гостям города. К дизайнеру Диане Калинкиной они обратились для того, чтобы создать интерьер, выгодно отличающийся от того, что предлагают на рынке недвижимости Сочи. Трапециевидное пространство с двумя панорамными окнами и большой террасой предстояло распланировать так, чтобы уместить все необходимое.

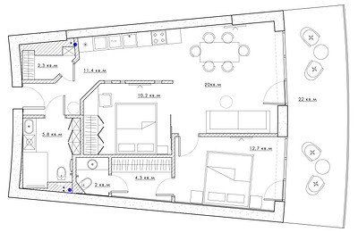
Планировка
По статусу это апартаменты, что значительно облегчало создание планировки апартаменты не считаются жилым пространством, и поэтому таких строгих норм, как в случае с квартирами, здесь нет.
От застройщика досталось пустое пространство, которое разделили на зоны. При входе большая ванная и отдельная гардеробная. Далее кухня, она проходная, из нее можно выйти в гостиную-столовую. Из общей зоны дверь в спальню со своей гардеробной и небольшим санузлом.

Также есть вторая спальня, она отделена от гостиной стеклянной перегородкой со шторой, так как в комнате нет окна. Таким образом решили вопрос с естественным светом, что очень важно в комнате для сна. А штора для лучшей приватности.
В апартаментах также есть большая терраса. На нее можно выйти из первой спальни и из гостиной.

Отделка
Отделочные материалы подбирали в соответствии с заданной концепцией средиземноморский стиль. Светлый, теплый, с натуральными материалами. Так, стены покрыты декоративной штукатуркой под мазанку. В прихожей сделали акцент с помощью мелкоформатной плитки с рисунком под изразцы.

Плитка в этом интерьере, в целом, не только практичный отделочный материал, но и значимый элемент декора. Так, керамику в том же стиле, что и в прихожей, разместили на фартуке.

Для рабочей зоны малой спальни и стен санузла мастер-спальни выбрали более активный рисунок в стиле пэчворк. Также использовали каменный шпон, которым оформили стену в ТВ-зоне и за изголовьем кровати в малой спальне.

На полу прихожей и кухни керамогранит под светлый терраццо. В спальнях и гостиной техномассив, современная разновидность доски из натурального дерева. На потолке гостиной решили сделать балки и оформить поверхности ламинатом под дерево, усилив присутствие деревянных фактур в интерьере.
В большой ванной комнате на полу тот же керамогранит, что в прихожей и на кухне, а стены оформлены светлой плиткой. Пол душевой выложен керамогранитом под гальку.

Большое значение в интерьере небольших комнат имеют зеркала. Дизайнер активно использовала их в ванной комнате, оформив таким образом фасады тумбы под раковину и хозяйственного шкафа. Зеркала размещены в прихожей и малой спальне. Это позволяет визуально увеличить пространство, распахнуть его, добавить воздуха.

Мебель и системы хранения
Так как квартира задумывалась как «отпускная», где не будут жить постоянно, не проектировали много систем хранения, но позаботились о необходимом. Это две гардеробные (в прихожей и мастер-спальне), шкаф для вещей в малой спальне, хозяйственный шкаф в ванной комнате.
Кухня линейная, помещение проходное, поэтому выбрали белый цвет гарнитура, чтобы не выделять утилитарную зону. Встроили нужную технику, предусмотрели место для хранения посуды.
Корпусную мебель изготовили на заказ, чтобы точно «попасть» в размеры и конфигурацию. Отдельно стоящую мебель, такую как обеденный стол, стулья, диван, подбирали в соответствии с выбранной концепцией.
Освещение
Для комфортного отдыха спроектированы разные сценарии света. Это и потолочные споты, и бра, и скрытые подсветки. В мастер-спальне и обеденной зоне дополнительные светильники являются неотъемлемой частью эстетики проекта. Обе пары подвесов выполнены под заказ.


Диана Калинкина Дизайнер, автор проекта
Очень важная роль текстильному оформлению была отведена в спальнях. Чтобы создать южный колорит и уютную атмосферу, в декоре использованы натуральные природные материалы, которые на юге встречаются буквально на каждом шагу. Например, большая декоративная подушка декорирована морской галькой и коричнево-бурыми волокнами от ствола пальмы трахикарпус, а ее наполнение из полезных трав, произрастающих на побережье. Покрывало и подушки выполнены вручную текстильными дизайнерами. Дополняют всю композицию подвесные светильники из бумажной лозы с бахромой, окрашенной градиентом в черный цвет. Светильники ручной работы в столовой из авторской коллекции дизайнера Олеси Пашьян дают мягкий теплый свет и создают причудливую игру теней благодаря хлопковым нитям.

Гостиная

Столовая

Столовая

Мастер-спальня

Мастер-спальня

Мастер-санузел

Мастер-санузел

Малая спальня

Малая спальня

Ванная комната

Прихожая
Редакция предупреждает, что в соответствии с Жилищным кодексом РФ требуется согласование проводимых переустройств и перепланировок.

Комментарии закрыты.