Содержание:
Много ниш, раковина на стиральной машине, компактная техника и другие приемы оформления маленького санузла, которые мы подсмотрели у дизайнеров.

1 Санузел, где поместилось все
Площадь санузла: 3,2 кв. м

Эта ванная комната находится в студии, предназначенной для аренды. Поэтому пространство должно было получиться универсальным и как можно более функциональным. Форма помещения почти идеальный квадрат, поэтому мебель и сантехнику удалось удобно расставить вдоль стен. В углу сделали душевую, рядом с ней туалет. Интересное решение дизайнер предложила для раковины: вместо тумбочки под ней поставили стиральную машину. А отсутствие традиционной системы хранения компенсировали узкой этажеркой рядом, шкафчиком с зеркалом, полочками и крючками.



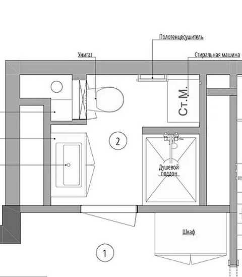
2 Лаконичная ванная с компактной техникой
Площадь санузла: 3,2 кв. м

И вновь квартира-студия, вновь для сдачи в аренду теперь уже краткосрочную. Дизайн выдержан в том же стиле, что и жилая комната, продолжается здесь и приятная нейтральная бежево-голубая гамма. Душевую зону подняли на поддон и отделили шторкой, под раковиной обустроили пару полок. Дизайнер нашла место и для небольшой стиральной машины. Решение стоит взять на заметку и тем, кто живет в маленькой квартире сам, для 1-2 человек компактной техники вполне достаточно.



3 Удобный санузел в пастельных тонах
Площадь санузла: 3,2 кв. м

Эта квартира принадлежит девушке. Для санузла выбрали красивую пастельную гамму: белый и серый в сочетании с пыльно-розовым и приглушенно-зеленым. Помимо этого, совместили несколько материалов: краску, керамогранит под мрамор, плитку. Особое внимание уделили функционалу. Кроме душевой, туалета и раковины с тумбой, дизайнер спроектировала на маленькой площади хозяйственный шкаф со стиральной машиной. А ревизионный люк замаскировали отделкой.



4 Функциональная ванная для семерых
Площадь санузла: 2,9 кв. м

46 квадратных метров для семьи из семи человек сложно поверить, но это реально! Санузел здесь тоже только один, площадью 2,9 кв. м. При этом дизайнеру удалось сделать его не только стильным, но и удобным, выделив достаточно систем хранения для большой семьи. Это тумба под раковиной, инсталляция над унитазом и небольшой хозяйственный шкаф над стиральной машиной.



5 Графичное пространство с нишами
Площадь санузла: 3,4 кв. м

Этот санузел в первую очередь привлекает внимание ярким дизайном: в оформлении использовали беспроигрышное сочетание черного, белого и насыщенного желтого. За счет этого ванная выглядит яркой и солнечной. Интересна и работа с пространством. Оно практически полностью построено на нишах: справа от входа сделана душевая зона, за ней место для стиральной машины. Раковина по левой стороне тоже стоит в углублении, за которым идет выступ с подвесным унитазом. По центру же остался удобный проход, чтобы по ванной можно было свободно передвигаться.



6 Светлая ванная с удобной планировкой
Площадь санузла: 2,9 кв. м

Площадь этого санузла даже чуть меньше трех квадратов 2,9 кв. м (квартира типовая, в панельном доме). Хозяйка взрослая женщина, дизайнер оформила интерьер в выбранных ей цветах. Один из них смелый винный оттенок, который появился и в ванной. Здесь он выступает как акцент на нейтральном светлом фоне. Функционально пространство решено стандартно для маленькой площади: вместо ванной душ для экономии места, мебель и сантехника подвесные. Кроме тумбы под раковину, удалось выделить место и для хозяйственного шкафа (он находится рядом с унитазом).



7 Элегантный санузел в неоклассическом стиле
Площадь санузла: 3,1 кв. м

Считается, что классика стиль для больших квартир и просторных комнат. Но это далеко не так, особенно если выбрать для оформления ее более современную версию. Например, так сделали в этой студии. Неоклассика прекрасно вписалась в небольшое пространство не только жилой части, но и санузла. Для его отделки выбрали крупноформатный керамогранит под мрамор и краску, а нейтральную серо-бежевую палитру оттенили множеством золотых деталей. Стиральная машина находится на кухне, поэтому в ванной оставили только необходимую сантехнику и минимум хранения: тумбу под раковиной и полочки в душевой.



Комментарии закрыты.