Содержание:
Архитектор переосмыслила планировку от застройщика и создала комфортный интерьер, куда вписала существующую мебель хозяев.

Заказчики и задачи
Семейная пара купила эту квартиру на последнем этаже одного из московских жилых комплексов. От застройщика здесь была предусмотрена возможность установки настоящего дровяного камина, не было внутренних стен, что в перспективе сокращало время на демонтаж. Семья обратилась к архитектору Варваре Филатовой. Они хотели жить в удобной, яркой обстановке, где будет комфортно отдыхать, работать и приглашать гостей.

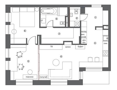
Перепланировка
Перегородок внутри не было, но, согласно плану от застройщика, в квартире предполагались три комнаты, ванная, санузел, кухня, большая прихожая, коридор и лоджия. Архитектор переосмыслила предложенную планировку. Кухню и прихожую визуально объединили, убрали разделяющую их перегородку. Коридор между комнатами задействовали: за его счет немного расширили ванную, а на оставшейся площади сделали гардеробную. Перегородку между кухней и гостиной убрали, создав общее пространство. А соседнюю комнату у гостиной сделали кабинетом и отделили ее стеклянной раздвижной перегородкой.

Третья комната стала спальней. Вход в нее сделан из кабинета, и именно к ней примыкает ванная и гардеробная. У хозяев получился приватный блок. При этом для гостей сохранили санузел при входе, там же разместили зону постирочной.

Отделка
Для отделки стен выбрали краску. Хозяева хотели включить любимый бирюзовый цвет, или, как принято его называть «цвет морской волны». Решили сделать это в гостиной. В спальне использовали зеленый для акцентной стены. Фоновым же стал жемчужно-белый.

Санузлы самые яркие помещения. Хозяйский отделан желтым керамогранитом и терраццо.

А гостевой более насыщенной плиткой, близкой к оранжевому.

На полу кухни и прихожей уложена плитка-«ковер», а в жилых комнатах инженерная доска. В спальне хозяева захотели использовать ковролин, а Варвара воплотила это пожелание.
Мебель и системы хранения
В квартире спроектировано много хранения. В прихожей шкаф для верхней одежды. В спальне гардеробная и еще один шкаф, который объединен с небольшим рабочим местом.

В кабинете установили книжный шкаф, который уже был у хозяев. Под цвет него изготовили рабочий стол.

Тут же антикварное пианино. И это не единственный раритет. Гостиную украшает старинный буфет, который установили рядом с каминной топкой. Напротив дивана подвесная тумба-консоль. Диван, кстати, тоже был у заказчиков. Его переобили, чтобы вписать в новый интерьер.

Кухня прямая. Но габаритная техника размещена по другой стене, ведущей в прихожую. Для гарнитура выбрали белый (под цвет стен) и голубой. Считается, что голубой снижает аппетит, и этого эффекта хотели достичь.

Компенсировали холодный голубой встроенным стеллажом винного цвета, который расположен здесь же.

Вместо обеденного стола барная стойка, выполненная из слэба на металлических опорах.

Хозяйственное хранение разместили в гостевом санузле. Там в шкафу встроены стиральная и сушильная машины, а также есть место для моющих средств, швабры и прочего инвентаря для уборки.
Освещение
Хозяева не хотели использовать люстры и вообще верхний свет в интерьере. Поэтому ограничились трековыми светильниками на кухне и в гардеробной и встроенными потолочными в санузлах. Единственная люстра расположена в прихожей, она минималистична и привлекает мало внимания.

В гостиной, спальне и кабинете закарнизная подсветка. Для разнообразия подвес над барной стойкой.
В квартире реализована система умного дома, с помощью которой управляются рулонные шторы. Владельцы не хотели тяжелых портьер и тюля, поэтому все окна оформлены именно так.

Варвара Филатова Архитектор, автор проекта
Стиль интерьера я бы классифицировала как утонченную эклектику. В этом интерьере замиксовали современную классику, которую так любит заказчица, и элементы лофта, которые хотел хозяин квартиры. Также удалось удачно интегрировать в интерьер антикварные предметы и современную мебель. Получился уютный микс для креативных личностей. Безусловно, главной изюминкой является действующий камин в гостиной.

Гостиная

Гостиная

Гостиная

Гостиная

Кабинет

Кабинет

Кабинет

Гостиная

Кухня

Кухня

Кухня

Прихожая

Спальня

Спальня

Спальня

Спальня

Ванная комната Редакция предупреждает, что в соответствии с Жилищным кодексом РФ требуется согласование проводимых переустройств и перепланировок.

Комментарии закрыты.