Содержание:
Семье нужен был функциональный и практичный интерьер с вместительными системами хранения, кабинетом, спальней и детской для двоих детей. Дизайнер реализовала эти пожелания.

Заказчики и задачи
Этой квартирой владеет семья с двумя детьми. При обращении к дизайнеру Анне Решетовой они озвучили понятные пожелания по функционалу: кухня с диваном, полноценное рабочее место и спальня, два санузла, один из которых с душем. У семьи много книг, им было важно продумать хранение библиотеки.

Перепланировка
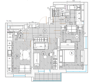
В квартире изначально были две комнаты и большая кухня, два санузла и кладовая. Дизайнер сделала небольшую перепланировку. Чтобы вписать со стороны прихожей встроенный шкаф, перестроили перегородку между ней и детской. Большую комнату отвели под спальню, разделили ее перегородкой. При входе в комнату получился кабинет, а в уединенной части зона сна. В кладовой оборудовали постирочную.

Отделка
Для отделки выбрали базовые материалы. На стенах светлая краска. В зоне кабинета за диваном использовали акцентные обои с изображением сказочного леса на синем фоне. На кухне гипсовые рельефные панели, которые задали стилистику и мебели. На полу уложена инженерная доска. В прихожей использовали керамогранит с рисунком терраццо, им же выложили акцентную стену рядом с входной дверью.

В душевой тоже применили керамогранит с рисунком терраццо, а ему в «компаньоны» подобрали нейтральный серый керамогранит под бетон.

В ванной комнате крупноформатный керамогранит под светлый камень и плитка под дерево.

Палитра интерьера построена из базового белого цвета, на фоне которого акцентом проведены синий и терракотовый цвета. Они прослеживаются в отделке (синие обои, вкрапления синего и терракотового на плитке-терраццо, синий потолочный карниз в спальне и стена на кухне и в прихожей), а также в мебели.

Мебель и системы хранения
Встроенный шкаф в прихожей с зеркальными фасадами для расширения пространства, два шкафа с антресольной частью «вокруг» дивана в кабинете, система хранения над рабочим столом, состоящая из из открытых и закрытых полок, комод и прикроватные тумбочки в спальне, шкаф, стеллаж в детской дизайнер предусмотрела разные системы хранения, чтобы уместить вещи семьи.

Для книг есть место в детской, кабинете и даже на кухне, где в углу рядом с кухонным гарнитуром разместился стеллаж с открытыми полками.

Кухню спроектировали прямой с антресольным рядом шкафов для увеличения места хранения. Удалось вписать небольшой диван у окна и таким образом организовать зону гостиной.

Чтобы создать визуальные параллели, часть мебельных фасадов подбирали под гипсовые панели с таким же рельефом.
Освещение
Общий сценарий света это точечные светильники и треки на потолке. Дополнительные люстры в прихожей, спальне и детской, подвес над обеденным столом, настенные бра у дивана на кухне, кровати и душевой у зеркала, а также скрытые подсветки.

Анна Решетова Дизайнер, автор проекта
В зоне кабинета у нас получилась очень атмосферное место с диваном и синими обоями с деревьями. С этих обоев и началось создание всего проекта. За это уединенное местечко я дала название этому проекту «Нарния».

Кухня

Кухня

Кухня

Кухня

Кухня

Кухня

Спальня

Спальня

Спальня

Кабинет

Кабинет

Кабинет

Детская

Детская

Душевая

Душевая

Ванная комната

Ванная комната

Прихожая

Прихожая Редакция предупреждает, что в соответствии с Жилищным кодексом РФ требуется согласование проводимых переустройств и перепланировок.

Комментарии закрыты.