Содержание:
Интерьер создавался для молодой семьи, дизайнер постаралась отразить в нем характеры своих заказчиков. Посмотрите, что получилось!

Заказчики и задачи
Владельцы квартиры молодая семья. Оба работают в банковской сфере, любят путешествия, отдых на природе, книги, занимаются спортом. К дизайнеру Анне Хомицкой они обратились с запросом на оформление интерьера, который бы ассоциировался с мощной красотой моря, неба и солнца. Со стороны функционала нужны были общее пространство кухни-гостиной, гардеробная в спальне, два полноценных санузла с душем и ванной для каждого из хозяев, а также комната-будущая детская.

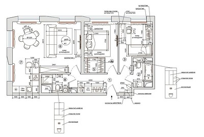
Планировка
Здесь почти не было перепланировки. Застройщик сдал квартиру с объединенной кухней-гостиной, двумя отдельными спальнями, двумя санузлами. Дизайнер только предложила построить гардеробную в спальне. Так и поступили. Малую комнату отвели под детскую. Центральную как раз под спальню заказчиков.

Отделка
Задачей отделки было создание атмосферы в заданной концепции. Поэтому дизайнер с хозяевами долго и кропотливо подбирали оттенки краски для стен: бежевые, которые стали отличным фоном для акцентной мебели и декора. Стены украшают молдинги и карнизы. На полу в жилых помещениях уложена инженерная доска тактильно приятный натуральный материал. Для зоны кухни, столовой и прихожей подобрали керамогранит под мрамор с коричневыми прожилками.

Ванная комната и душевая разные по атмосфере помещения. В первом случае стояла цель создать расслабляющее пространство, где хозяйка могла бы уединиться, отдохнуть, с комфортом провести необходимые процедуры. Поэтому отделка в спокойных нежных тонах: бежевая краска, керамогранит с рисунком камня.

Душевая «мужская» зона. И здесь к бежевому добавили керамогрнит в темных синих тонах с рисунком, напоминающим морские волны. Такой же керамогранит украсил фартук кухни, создав яркий контраст со стенами и мебелью.

Мебель и системы хранения
Хранение продумано так, чтобы не захламлять интерьер визуальным шумом, а подчеркнуть его парадность и красоту. Поэтому в спальне все хранение сосредоточено в гардеробной, на виду только прикроватные тумбочки и консоль под телевизором.

В прихожей организован шкаф для верхней одежды и хозяйственного хранения: стиральной машины, средств и инвентаря для уборки. Так «быт» не заходит в интерьер.

В зоне гостиной спроектирован встроенный шкаф, где часть фасадов стекло, а вторая глухие дверцы. За стеклом можно выставить красивый декор и посуду, а за дверцами спрятать то, что не добавляет эстетики пространству. Шкаф декорирован латунными профилями, как и кухонный гарнитур. Есть тумба под телевизор для хранения книг и других вещей.

Что касается хранения на кухне задействовали стены до потолка по одной стене, а нижние базы сделали П-образными с функциональной барной стойкой, где также есть места для хранения. С эстетической точки зрения гарнитур это еще и украшение зоны кухни-столовой. Латунные профили, цоколь под латунь, тонированное стекло все это способствует настроению роскоши.

Мягкая мебель подобрана в глубоких синих оттенках обивка дивана в гостиной, кровати в спальне, барных стульев. Обеденные стулья в нежно-голубой обивке. Оттенки синего выбраны в качестве акцента как параллель с морем и небом.

Освещение
Создание разнообразных сценариев освещения примета любого актуального интерьера. И этот не исключение. Здесь есть и функциональное освещение в виде подсветок, и общий сценарий света в виде точечных светильников и люстр, и бра, торшеры. Декоративные светильники подобраны в стилистике ар-деко золотистые элементы, стекло, изысканные формы.

Анна Хомицкая Дизайнер, автор проекта
Общая стилистика помещения современный стиль с элементами ар-деко. Элементы стиля ар-деко ненавязчивы, выражены преимущественно геометрией, скрытой роскошью, самобытностью в сочетании с современными материалами и декором под золото. Стиль выбран исходя из эстетических предпочтений заказчиков, отражения их внутреннего мира, вкусовых предпочтений и образа жизни, тяги к эксклюзиву и эффектности. Картина, расположенная на стене над диваном, появилась в процессе декорирования съемки. Она очень четко передала мой изначальный идейный замысел, заказчики ее приобрели после съемки. Если расположиться на диване со стороны входа в комнату, мы будем созерцать картину, которая сливается с экстерьером за окном и текстилем на окнах, погружая нас в фантазийный мир.

Гостиная

Гостиная

Гостиная

Гостиная

Гостиная

Столовая

Спальня

Спальня

Спальня

Спальня

Спальня

Прихожая

Ванная комната

Душевая Редакция предупреждает, что в соответствии с Жилищным кодексом РФ требуется согласование проводимых переустройств и перепланировок.

Комментарии закрыты.