Содержание:
От сталинки до новостройки рассматриваем примеры готовых планировок двушек в разных типах домов. Разбираемся, какие изменения можно и нельзя вносить в исходный план квартиры.

Двушка универсальное жилье, которое подходит и одному человеку, и паре, и семье с ребенком. Размер и конфигурация зависят от типа дома. В этой статье рассмотрим все особенности планировки двухкомнатной квартиры: в панельном и нетиповом доме, в сталинке, хрущевке или новостройке. Покажем готовые варианты и расскажем об особенностях каждого.
Планировка и дизайн двухкомнатной квартиры
Что можно и нельзя делать
Жилищный кодекс определяет перепланировку как изменение изначального плана жилища, его конфигурации. Некоторые манипуляции не требуют согласования, другие нужно узаконить, а какие-то категорически запрещены.
Закон разрешает:
Закон запрещает:















Варианты планировок двухкомнатной квартиры с размерами
Конфигурация жилья зависит от типа дома, в котором оно находится. Рассмотрим готовые варианты планировок двухкомнатных квартиры с фото реализованных проектов в старом фонде и новостройках.
Вторичное жилье
Планировки двухкомнатных квартир в старых домах зависят от периода их постройки. Есть как удобные варианты (например, в сталинках с высокими потолками), так и те, которые традиционно считают неудачными (хрущевки и брежневки).
Нетиповой дом
Нетиповыми называют дома, которые построены по проекту архитекторов в штучном экземпляре. Годы и технологии постройки могут быть разными, главный объединяющий фактор отсутствие серийности.
Пример
Площадь: 79 кв. м
Эта квартира находится в здании 1905 года, которое считается объектом культурного наследия. Изначальное планировочное решение двушка коридорного типа с высокими потолками и большими окнами. Все помещения идут друг за другом вдоль длинного коридора. Дизайнер предложила внести лишь несколько незначительных изменений: в спальне, которая находится в конце, выделили просторную гардеробную, а проход между кухней и гостиной сделали более широким. Дом газифицирован, но объединение помещений согласовали за счет особенностей здания (квартира единственная жилая на этаже). В остальных случаях, чтобы узаконить такой проект, нужно будет поставить между кухней и гостиной перегородку или дверь.

До

После
Интерьер получился спокойным, но эклектичным: дизайнер сохранила дух прошлого, свойственный дому, с помощью классических элементов и винтажа. А дополняет их лаконичный сканди. Современные отделка и предметы здесь сочетаются со старинными светильниками и отреставрированной мебелью, создавая уникальный микс стилей.














Сталинка
Дома сталинского периода разнятся от серии к серии, но вызывают одни и те же устойчивые ассоциации: высокие потолки, паркет на полу, просторные помещения, красивые фасады здания.
Пример
Площадь: 60 кв. м
Планировка этой двухкомнатной квартиры угловая. Именно в случае сталинок это хороший вариант, поскольку стены в домах того времени толстые и хорошо сохраняют тепло. Интерьер создавался для семейной пары, которая живет в этой двушке уже 20 лет. К дизайнеру обратились с просьбой освежить и модернизировать обстановку. Исходное планировочное решение менять не стали: кухня была достаточно большой, чтобы разместить там гарнитур и полноценную обеденную зону, дальнее помещение отвели под гостиную, а спальню с гардеробной оформили в противоположной стороне.

До

После
В качестве основного стиля взяли современную классику это полностью отвечает вкусам заказчиков и духу места. Дизайнер сохранила ключевые элементы сталинского интерьера: паркет-елочку на полу, массивные люстры в гостиной и столовой. В декор включили старинную мебель и хозяйскую коллекцию искусства.










Хрущевка
Хрущевки пришли на смену сталинским сериям в 50-х годах прошлого века. В тот период отношение к типовой застройке кардинально изменилось: девиз был «быстрее и больше», дома возводили со строго утилитарными целями, полностью отказавшись от декоративной составляющей архитектуры. Конфигурация жилья тоже стала другой: стены тоньше, комнаты меньше, потолки ниже.
Пример
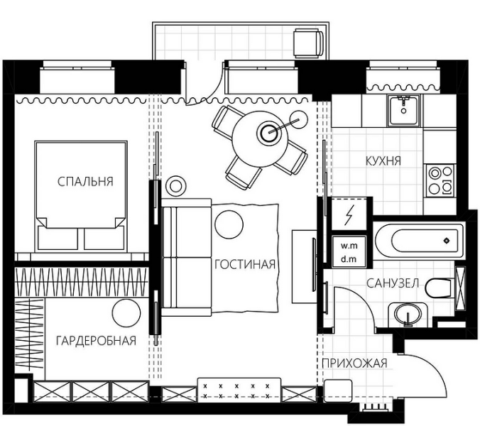
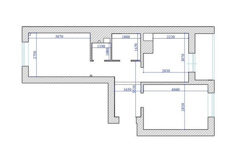
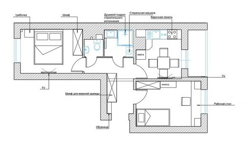
Площадь: 44 кв. м
В этом проекте мы видим типичную для хрущевки планировку 2-х комнатной квартиры. Длинная прихожая и две жилых комнаты, одна проходная. Кухня занимала стандартные 5,5 квадрата, ванная также была маленькой. Дизайнер предложила достаточно масштабную планировку, чтобы воплотить все пожелания хозяйки молодой активной и разносторонней женщины.
Так:

До

После
У заказчицы были четкие пожелания к будущему интерьеру: создать в нем дух Парижа. Для этого дизайнер совместила классические приемы с яркими акцентами и характерными для французского стиля атмосферными деталями. Теперь лепнина и мебель округлых форм соседствуют с акварельным рисунком на стенах, минималистичным белым гарнитуром и цветным текстилем.










Панелька
Панельные дома относятся к последним типовым сериям, хотя строились и после распада СССР вплоть до двухтысячных. Их часто называют «улучшенками»: чем позже год постройки, тем больше недостатков хрущевок учтено и исправлено. Так, в последних сериях уже достаточно высокие потолки и более просторные кухни. Но общие особенности остаются неизменными: небольшие по площади изолированные помещения, плохая звукоизоляция, несущие стены.
Пример
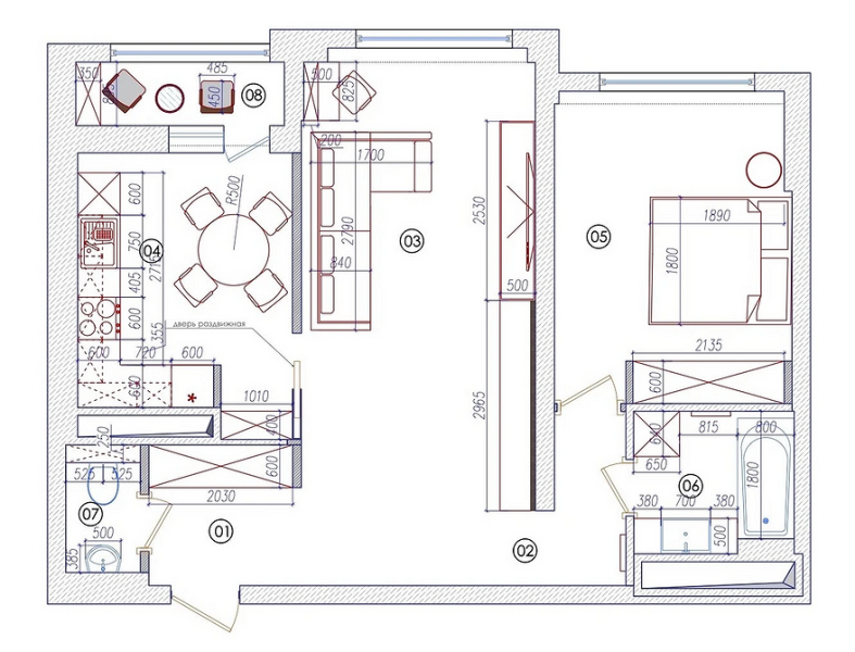
Площадь: 45 кв. м
Эта двушка принадлежит женщине, которая живет здесь со своей десятилетней дочкой. Из-за несущих стен поменять конфигурацию помещений было невозможно, поэтому дизайнер работала с исходной планировкой 2-х комнатной квартиры-распашонки. В распоряжении были восьмиметровая кухня и два жилых помещения площадью 10,6 и 11,4 кв. м. Их отвели под спальни мамы и дочери, а от гостиной было решено отказаться. На кухне хватило место для полноценного гарнитура и удобной столовой зоны на четверых на случай гостей. Изначально раздельный санузел таким и оставили.

До

После
Чтобы сделать небольшое пространство визуально более просторным, за основу взяли скандинавский стиль. Основа палитры фоновый белый цвет, а его дополняют яркие оттенки: зеленый, солнечно-желтый, фиолетовый, бирюзовый. Вся мебель простых форм, но более уютным жилье делают природные материалы и фактуры.














Новостройки
Современные планировки двухкомнатных квартир отличаются большим разнообразием: жилье может быть любой формы (в том числе сложной, например, с закругленными стенами), площади или конфигурации. Застройщики сдают объекты с уже возведенными перегородками или вообще без них, позволяя формировать пространство так, как нужно хозяевам.
Стандарт
Стандартное планировочное решение предполагает отдельную кухню (любого размера) и два изолированных жилых помещения. Их назначение зависит от состава семьи и потребностей жильцов. Для одного человека или пары чаще всего подходит вариант со спальней и гостиной, а семьи с ребенком оформляют в одной из комнат детскую.
Пример
Площадь: 69 кв. м
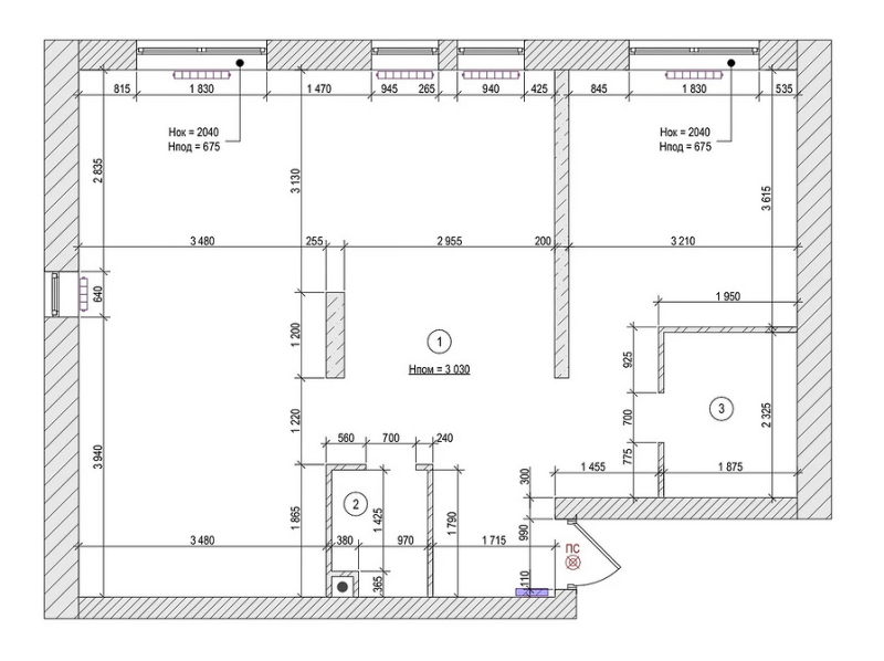
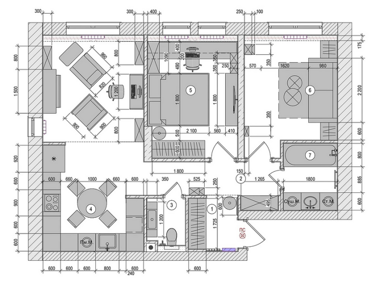
Эту двушку заказчики изначально планировали сдавать в аренду, но в процессе работы над проектом решили оставить для себя. Исходное планировочное решение уже было удачным: изолированная спальня, два санузла, просторная входная зона и кухня-гостиная. Последние разделили раздвижной перегородкой, получив таким образом полноценное двухкомнатное жилье. А вот от прихожей и коридора зал не стали отделять, чтобы впустить в жилое пространство больше света из панорамных окон.

До

После
При оформлении интерьера дизайнер вдохновлялся видом из окна на горы. Было решено оставить в пространстве как можно больше воздуха и простора, сакцентировав внимание на панораме. При этом палитру выбрали достаточно яркую, в которой преобладают сине-голубые тона разной степени насыщенности.








Евротрешка
Планировка двухкомнатной квартиры в духе «евро» предполагает наличие двух изолированных жилых комнат и просторной кухни-гостиной. Формально она относится к двушкам, но по факту помещений три отсюда и название.
Пример
Площадь: 67 кв. м
Эта яркая евротрешка принадлежит молодой семье. Изначальный план полностью устраивал хозяев, поэтому изменений практически не вносили только сделали перегородку в прихожей, чтобы установить большой встроенный шкаф. Жилые комнаты превратили в спальни: хозяйскую и гостевую. В гостиной, помимо зоны отдыха, организовали удобное рабочее место.

До

После
Интерьер представляет собой красочный микс стилей: скандинавские мотивы сочетаются с этническими элементами. Пространство наполнено насыщенными красками, которые гармонично сочетаются между собой. Объединяют их освежающий белый и спокойная фактура дерева, заодно добавляющая уюта.












Свободная планировка
Такой тип планировочного решения предполагает отсутствие внутренних перегородок. Обозначаются только мокрые зоны. Это дает возможность самостоятельно разделить пространство на жилые зоны, выбрав удобные площадь, форму и взаимное расположение.
Пример
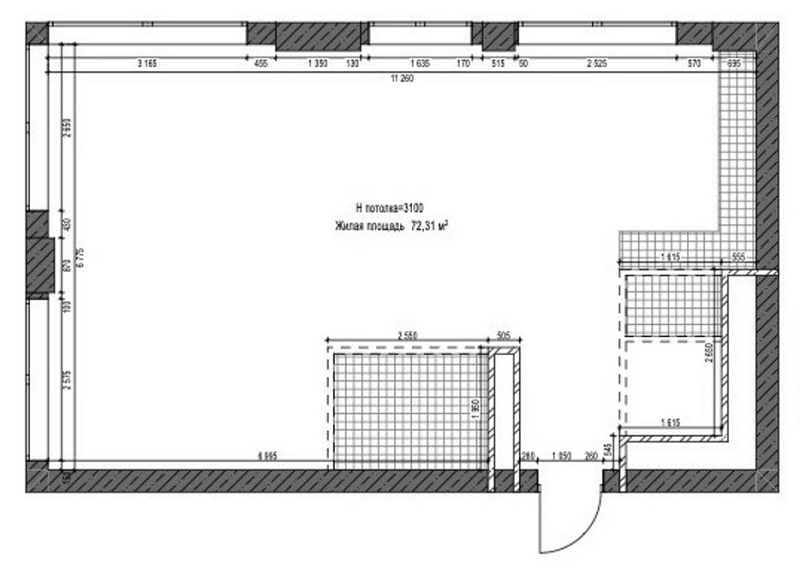
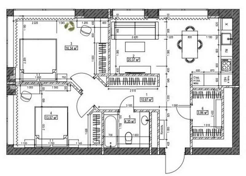
Площадь: 60 кв. м
Это жилье оформляли для двадцатилетних брата и сестры. По изначальному плану от застройщика объект предполагался как двушка с гардеробной и двумя санузлами. От одного из них отказались, чтобы выделить больше места в гардеробной, в остальном перегородки возвели так, как было предложено. В итоге получилась просторная кухня-гостиная, а рядом с ней две смежные изолированные спальни.

До

После
Дизайнеры интересно решили стилистический вопрос у брата и сестры были разные предпочтения, поэтому в одном пространстве нужно было соединить брутальный современный стиль и утонченный ар-деко. Это удалось сделать с помощью универсальных нейтральных решений (отделочные материалы, базовые цвета и т.д.), которые уже дополнили яркими деталями в соответствии со вкусами каждого из жильцов.












Комментарии закрыты.